8h -17h Thứ 2 - Thứ 7
Hotline: | 0909679777
Hành Trình Tái Sinh Nguồn Nước: Hướng Dẫn Vận Hành Hệ Thống Xử Lý Nước Thải sản xuất giày (1.300m³/ngày đêm)

Hành Trình Tái Sinh Nguồn Nước: Hướng Dẫn Vận Hành Hệ Thống Xử Lý Nước Thải sản xuất giày (1.300m³/ngày đêm)

1. Tổng Quan về Mục Tiêu và Sứ Mệnh Kỹ Thuật

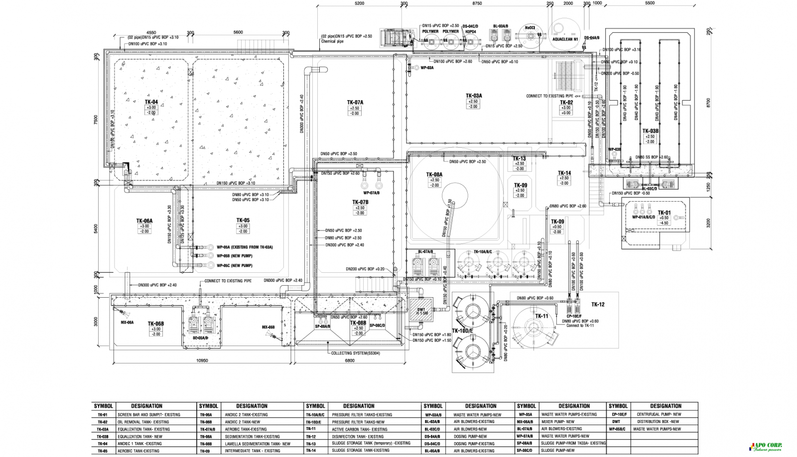
Hệ thống xử lý nước thải (XLNT) tại nhà máy Sản xuất giày được thiết kế với công suất 1.300m³/ngày đêm. Đây là một tổ hợp công nghệ phức hợp, đòi hỏi người vận hành phải nắm vững kiến thức chuyên môn để chuyển hóa dòng nước thải công nghiệp thành nguồn nước đạt chuẩn môi trường trước khi xả thải.

Trọng tâm vận hành: Đảm bảo tính liên tục của quy trình sinh học và sự chính xác trong liều lượng hóa chất để bảo vệ hệ sinh thái khu vực Mộc Bài, tuân thủ nghiêm ngặt tiêu chuẩn QCVN 40:2011/BTNMT.

--------------------------------------------------------------------------------

2. Chặng 1: Giai Đoạn Tiền Xử Lý - Kiểm Soát Đầu Vào

Người vận hành phải hiểu rằng chất lượng nước thải đầu vào luôn biến động. Giai đoạn này nhằm loại bỏ các tác nhân vật lý và ổn định hóa lý cho dòng thải.

Bảng 1: Chỉ số và Nhiệm vụ Cụm Tiền Xử Lý

Tên Bể (Mã số)

Thiết bị Trọng tâm

Nhiệm vụ "Sống còn"

Bể thu gom (TK-01)

Máy tách rác, Bơm WP-01A/B/C

Loại bỏ rác thô; bơm nước thải từ hố thu về hệ thống xử lý chính.

Bể tách dầu (TK-02)

Vách ngăn trọng lực

Tách dầu mỡ nổi. Tuyệt đối không để dầu đi vào bể sinh học vì sẽ gây "ngạt" vi sinh.

Bể điều hòa (TK-03A/B)

Máy thổi khí BL-03A/B/C

Ổn định lưu lượng và nồng độ (pH, BOD). Việc sục khí liên tục giúp ngăn chặn phân hủy kỵ khí gây mùi.

  • Lưu ý Kỹ thuật: Sự dao động pH tại TK-03A/B là nguyên nhân hàng đầu gây chết sinh khối tại các bể phía sau. Người vận hành phải kiểm soát pH đầu vào trong ngưỡng 6.5 - 8.5 trước khi bơm sang chặng 2.

--------------------------------------------------------------------------------

3. Chặng 2: "Nhà Máy Sinh Học" - Chu trình Nitơ và Phân hủy Hữu cơ

Đây là khu vực cốt lõi quyết định chất lượng nước đầu ra. Hệ thống áp dụng quy trình đan xen Anoxic (Thiếu khí) và Aerobic (Hiếu khí) để xử lý triệt để Nitơ và chất hữu cơ.

  1. Bể Anoxic 1 (TK-04): Máy khuấy chìm MX-04 tạo dòng chảy rối, giúp vi khuẩn khử Nitrat hóa hoạt động trong môi trường thiếu oxy.
  2. Bể Aerobic 1 (TK-05): Hệ thống phân phối khí cung cấp oxy để vi sinh hiếu khí phân hủy BOD, COD và thực hiện quá trình Amoni hóa.
  3. Bể Anoxic 2 (TK-06A/B): Tiếp tục quá trình khử Nitơ còn sót lại bằng máy khuấy MX-06A/B.
  4. Bể Aerobic 2 (TK-07A/B): Giai đoạn hoàn thiện quá trình oxy hóa các hợp chất hữu cơ khó phân hủy.
  • Cơ chế Tuần hoàn Nội bộ (Crucial Step): Để xử lý Nitơ hiệu quả, nước thải từ bể Aerobic 2 được bơm ngược lại bể Anoxic (sử dụng bơm tuần hoàn WP-05AWP-07A/B).
  • Phân tích Pedagogy: Nếu không có sự tuần hoàn này, chu trình Nitơ sẽ bị ngắt quãng, dẫn đến chỉ số Tổng Nitơ đầu ra vượt ngưỡng.

--------------------------------------------------------------------------------

4. Chặng 3: Làm Trong và Tinh Lọc Vật Lý

Khi các vi sinh vật đã hoàn thành quá trình phân hủy sinh học, dòng nước được chuyển sang giai đoạn tách pha và lọc sâu.

  • Bể lắng Lamella (TK-08A/B):
    • Nguyên lý: Sử dụng các tấm lắng nghiêng (Lamella) để tăng diện tích lắng hiệu dụng lên gấp nhiều lần trong một không gian hẹp.
    • Hiệu quả: Giúp bùn vi sinh lắng nhanh xuống đáy bể để bơm bùn tái tuần hoàn hoặc thải bỏ.
  • Hệ thống Lọc Áp lực (TK-10A/B/C/D/E/F):
    • Bồn lọc cát (TK-10A/B/C): Cấu tạo từ Thép CT3 sơn Epoxy, chứa các tầng vật liệu (Cát thạch anh/Sỏi đỡ) giúp giữ lại cặn lơ lửng (TSS).
    • Bồn lọc than hoạt tính (TK-10D/E/F): Hấp phụ màu và mùi còn sót lại, đảm bảo nước đạt độ trong tuyệt đối.

--------------------------------------------------------------------------------

5. Chặng 4: Khử Trùng và Điều Phối Hóa Chất

Đây là "chốt chặn" an toàn cuối cùng trước khi nước được trả về môi trường.

  • Hệ thống châm hóa chất: Theo sơ đồ đường ống, người vận hành cần giám sát các bồn chứa:
    • NaOCl (Sodium Hypochlorite): Châm tại bể TK-11 để tiêu diệt Coliform.
    • H3PO4 (Axit Phosphoric): Cung cấp nguồn Photpho cho vi sinh vật khi nước thải thiếu hụt dinh dưỡng.
    • AquaClean: Châm vi sinh bổ sung để duy trì mật độ sinh khối khỏe mạnh.
  • Bể chứa nước sạch (TK-12): Lưu trữ nước đã đạt chuẩn, sẵn sàng xả ra nguồn tiếp nhận.

--------------------------------------------------------------------------------

6. Chặng 5: Hậu Cần và Xử Lý Bùn Thải (Sludge Treatment)

Quy trình này giúp giảm thể tích chất thải rắn, tối ưu hóa chi phí vận hành.

Checklist Vận hành Máy ép bùn:

  1. [ ] Kiểm tra mức bùn tại Bể chứa bùn TK-13 và Bể nén bùn TK-14.
  2. [ ] Pha trộn dung dịch Polymer tại bồn DS-04A/B. Lưu ý: Polymer cần thời gian chín (aging) để đạt hiệu quả kết bông tốt nhất.
  3. [ ] Khởi động máy bơm bùn và bơm định lượng Polymer đồng thời.
  4. [ ] Giám sát độ khô của bánh bùn sau khi qua máy ép.
  5. [ ] Thu gom bánh bùn vào khu vực lưu giữ chất thải theo quy định.

--------------------------------------------------------------------------------

7. Tổng Kết: Giải Pháp Tự Động Hóa và Kiểm Soát Nitơ

Dữ liệu thực tế cho thấy khi vận hành thủ công, các chỉ số như BOD (329 mg/L) và COD (728 mg/L) thường vượt chuẩn do sự thiếu ổn định trong việc tuần hoàn bùn và sục khí.

Bảng 2: Chỉ số Mục tiêu theo QCVN 40:2011/BTNMT (Cột A)

Thông số (Parameter)

Đơn vị

Ngưỡng đạt chuẩn (Cột A)

Ý nghĩa Kỹ thuật

pH

-

6.0 - 9.0

Đảm bảo an toàn cho thủy sinh

BOD5 (20°C)

mg/L

< 30

Mức độ tiêu thụ oxy thấp

COD

mg/L

< 75

Lượng chất hữu cơ tối thiểu

TSS

mg/L

< 50

Độ trong của nước

Tổng Nitơ

mg/L

< 15

Kiểm soát hiện tượng phú dưỡng

Coliform

MPN/100mL

< 3.000

Loại bỏ vi khuẩn gây bệnh

Lời kết từ Chuyên gia: Việc áp dụng hệ thống Tự động hóa hoàn toàn (PLC Control) là yêu cầu bắt yếu để duy trì các chu kỳ Anoxic/Aerobic chính xác đến từng giây. Đây là chìa khóa duy nhất để khắc phục tình trạng Nitơ vượt chuẩn, giúp Sản xuất giày làm chủ công nghệ và bảo vệ môi trường bền vững.

Bài viết gần đây

Sản phẩm nổi bật

Bài viết liên quan
© 2023 Bản quyền thuộc về CÔNG TY CỔ PHẦN NĂNG LƯỢNG Á CHÂU   |